top of page

.jpg)


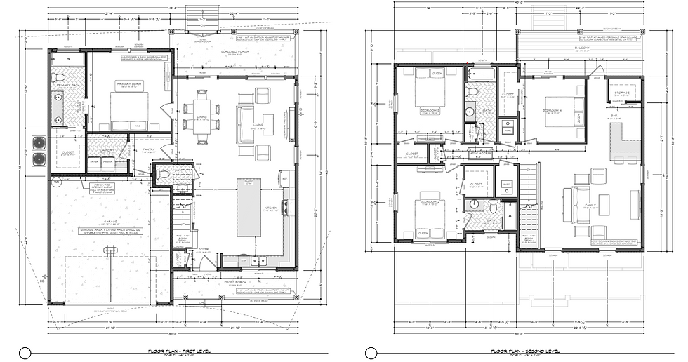
Square Footage
Total Leaving Space 2,524,
Total Covered 3,463 sq. ft.
Rooms
Bedrooms 4,
Office 0
Car
Cars 2,
Garage 483 sq. ft
Baths
Full bathrooms 3,
Half bathrooms 1
Stories
Stories 2
Ceiling Heights
First Floor 9',
Second Floor 9'
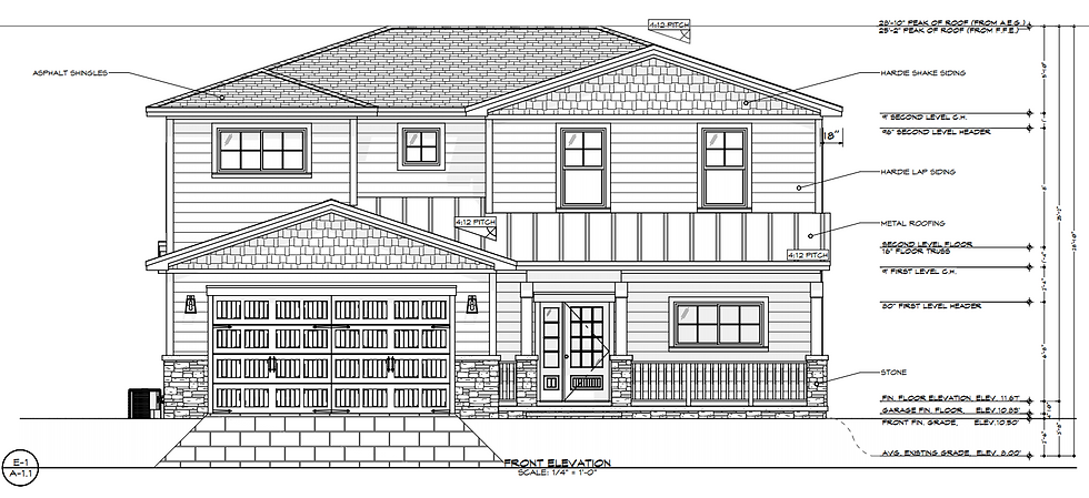
Roof Details
Stick and Truss Framing,
Metal Roofing
Foundation Type
Monolithic Slab, Slab
About us
Our Homes
Remodeling
Custom Homes
Model Homes
Included Features
Contact us
+1 850-404-9888
DESTIN, FL 32439
Locations We Serve
Santa Rosa County, Florida
Okaloosa County, Florida
Walton County, Florida
Bay County, Florida
© 2024 by The Build One. All Rights Reserved.
Confidential policy
bottom of page





































_edited.jpg)
_edited_edited.jpg)